3-D Modell und Bauplan

Das 3-D Model kann mit Sketchup geöffnet werden. Ein kurze Einführung für Sketchup werde ich bald online stellen.

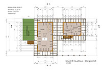
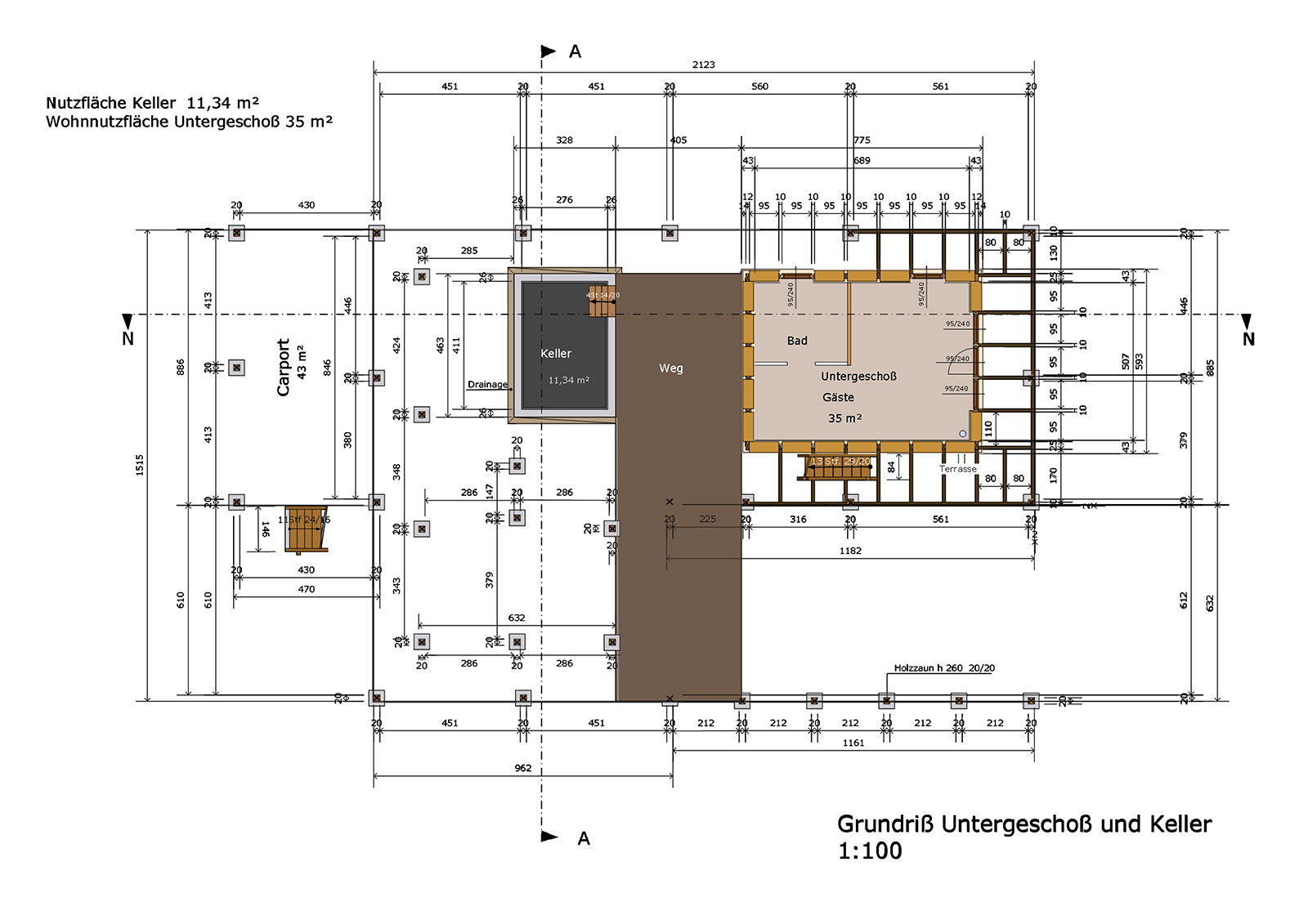
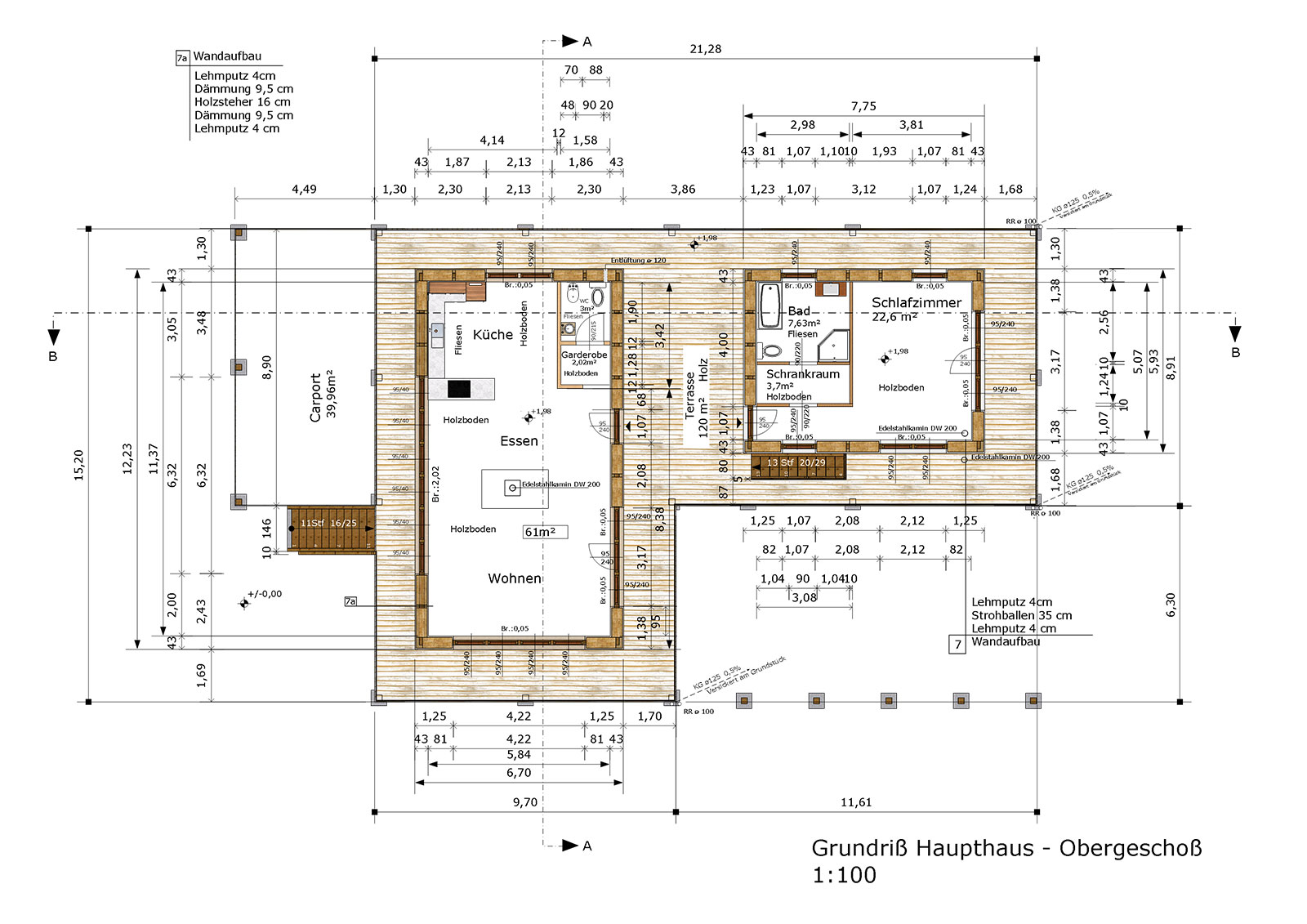
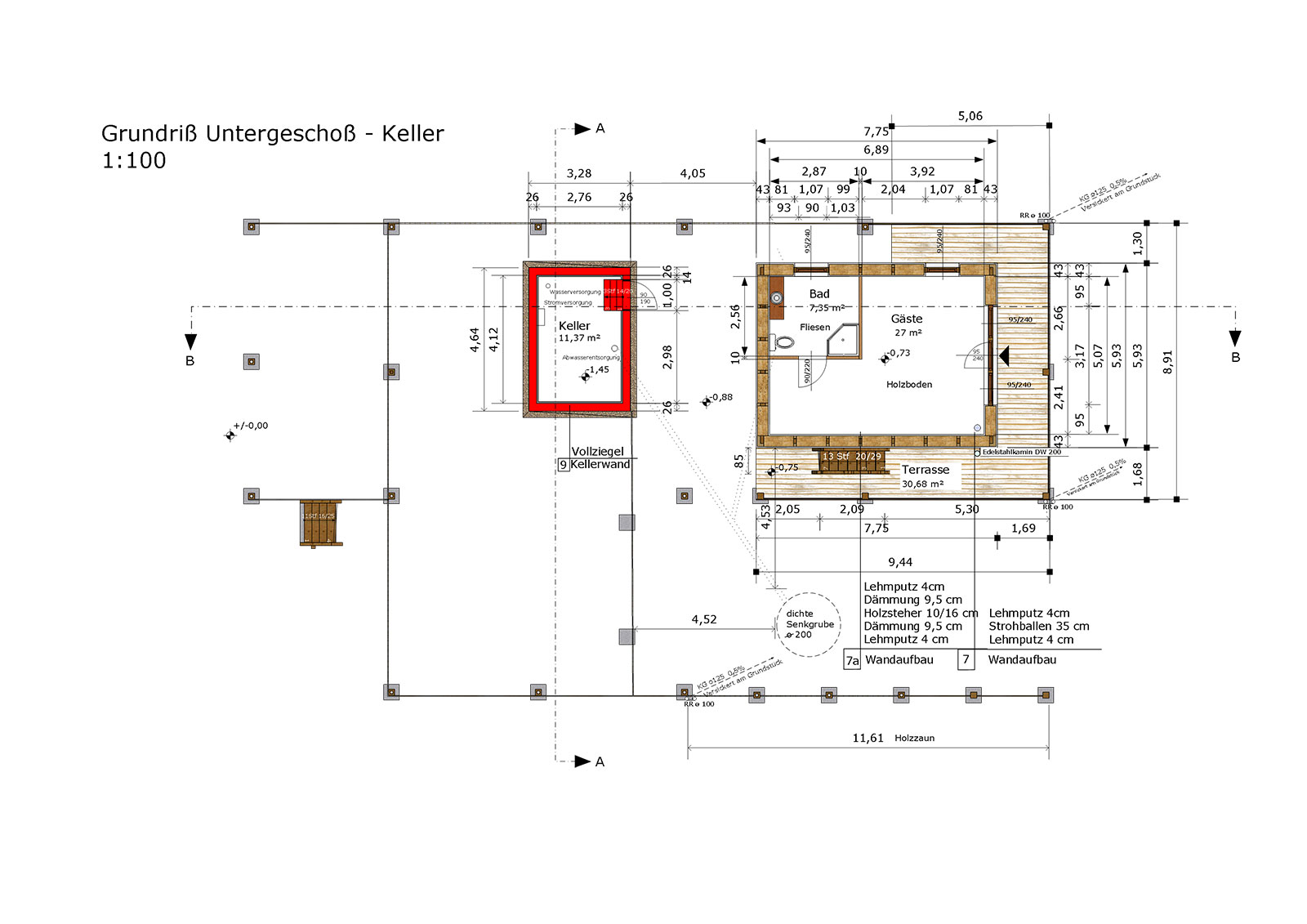
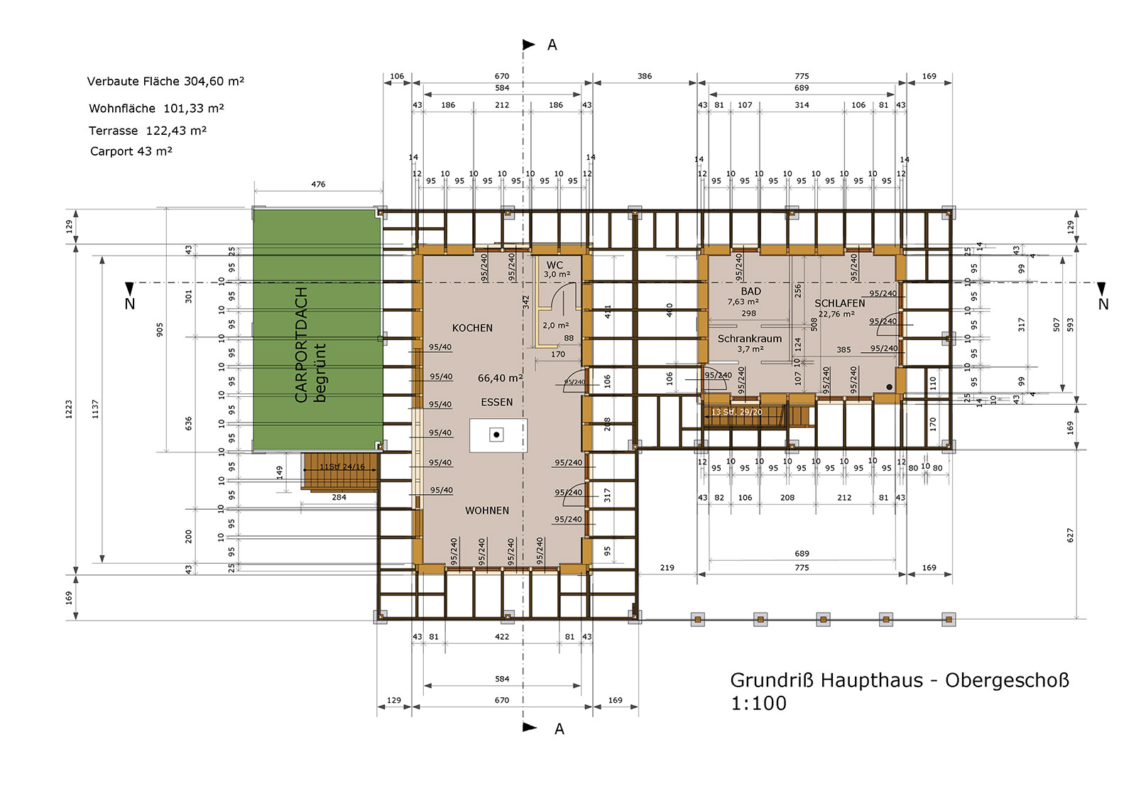
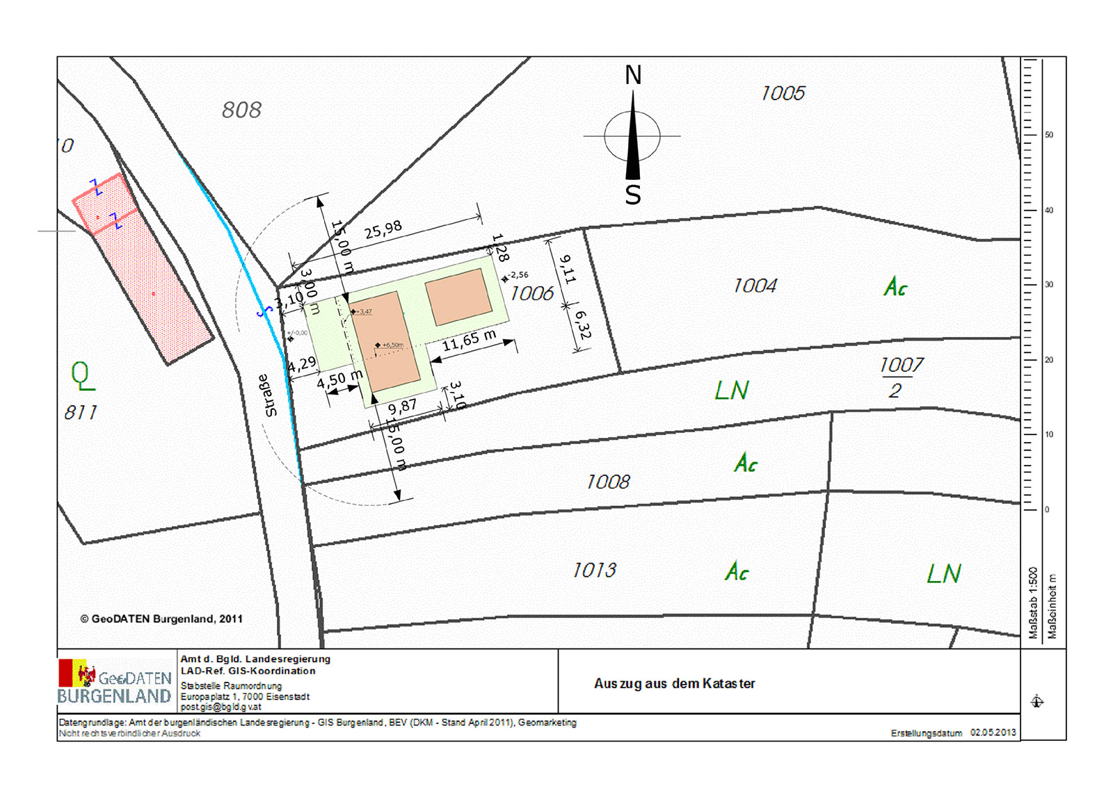
Bauplaene im PDF-Format und Originalgröße

Fotos vom Bauplan und weitere Ansichten. Ein Klick öffnet das Originalfoto (1600x1100 px) in einem neuen Fenster.